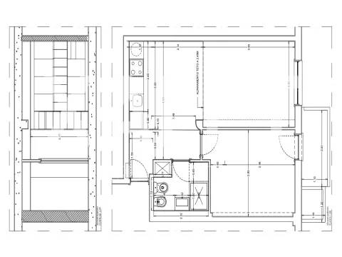
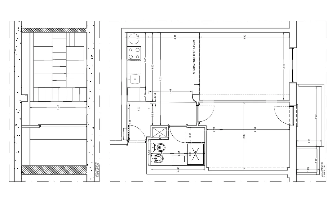
Apartamento de 1 dormitorio en venta junto al Campus Universitario, ¡en Oporto!Este encantador apartamento de un dormitorio, ubicado muy cerca del Campus Universitario de la Universidad de Oporto, te ofrece el equilibrio perfecto entre confort y comodidad urbana. Con una superficie de 46 metros cuadrados, este acogedor espacio es ideal para quienes eligen la ciudad de Oporto para estudiar o trabajar.
Al entrar en este apartamento, te recibirá un espacio cálido y bien distribuido, donde cada rincón ha sido optimizado para ofrecer el máximo confort. El salón es acogedor y proporciona un ambiente relajante para desconectar después de un día agitado en la ciudad. La cocina, aunque compacta, está totalmente equipada con todo lo necesario para preparar tus comidas.
Ubicación:Con una ubicación excelente, este apartamento te sitúa en el epicentro de la vida urbana de Oporto. Disfruta de la comodidad de tener una amplia variedad de servicios y comodidades justo en la puerta de casa: supermercados, restaurantes, cafeterías acogedoras y tiendas locales, todo está a poca distancia.
Además, su ubicación estratégica te ofrece fácil acceso a todas las zonas de la ciudad. Con varias opciones de transporte público cerca, incluyendo estaciones de metro y paradas de autobús, moverse por Oporto nunca fue tan fácil.
A pesar de estar en el centro, también tendrás acceso a zonas verdes y áreas de ocio cercanas.
Características principales: - Salón amplio y con mucha luz natural
- Cocina amueblada y equipada en estilo open space
- Dormitorio con acceso al balcón
- Baño con plato de ducha
No pierdas la oportunidad de vivir en este encantador apartamento de un dormitorio, donde el confort, la conveniencia y la emoción de la vida urbana se combinan. ¡Agenda ya tu visita y prepárate para comenzar una nueva y emocionante etapa en Oporto!